本次辦公室設計面積為280平方,設計行業(yè)的服裝行業(yè)辦公室設計,設計師在設計的時候除了要考慮行業(yè)的特征,同時需要很好的完成功能之間的布局。

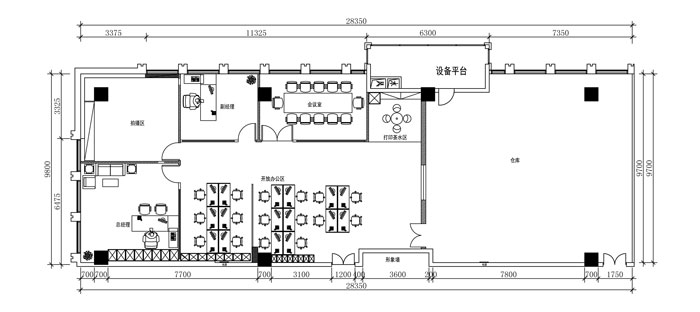
平面設計:設計師首選需要構思的就是功能區(qū)域如何搭建,其中三分之一被做為倉庫做存儲之用,剩下的空間被設計師按照不同的比例對空間進行劃分,區(qū)域劃分為:進門區(qū)域、形象墻、打印茶水區(qū)、會議室、開放式辦公區(qū)、副經理辦公室、總經理辦公室、拍攝區(qū)域。

俯視圖:通過以上的俯視圖大家對于空間會有一個直觀的認識,企業(yè)品牌設計在外部墻面,經過進門區(qū)域進入辦公室,首先經過的就是形象墻,到達打印茶水區(qū)域,通過動線拐彎經過開放式辦公區(qū)域與會議室、副經理辦公室,最后到達總經理辦公室與拍攝區(qū)域。

企業(yè)品牌的設計:凹行的設計讓此處稍顯突兀,在加上燈光的搭配是的企業(yè)品牌得以清晰的展現,同時素白色的墻面與燈光相互呼應,將企業(yè)品牌襯托到極致。

進門區(qū)域的設計:設計師將形象墻開設一個小型窗口與倉庫相連,一則可以提取樣品,二則可作為展示區(qū)域使用,形象墻的設計,設計師采用雙重標準,使的產品展示與企業(yè)文化得以共同出現與展示。

動線的設計:在辦公空間動線的設計中,設計師的目的就是采用簡單的L型路線,一則使的各個空間通達,二則可以以動線為基點向周圍布設空間,起到以點破面。

辦公空間的設計:設計師在設計的時候,采用分與合的方式對空間進行設計,其一以隔斷隔離辦公空間以達到辦公工位的需要,其二不管是展示柜還是辦公桌椅都以合的方式進行布局。

會議室的設計:設計師在設計的時候,采用映射的方式對空間進行設計,因為空間面積的限制,設計師在其中加入了視覺延伸,以此使的會議功能與人數限制得以雙重提高。

總經理辦公室的設計:設計師在設計的時候,采用分對空間進行設計,對整個空間進行分布式設計,在滿足辦公需求的同時,為空間引入外部環(huán)境改善其空間屬性,使的辦公室更顯人性化設計。
本次服裝公司辦公室設計方案到此介紹完畢,希望通過嵐禾設計的介紹,可以為需要的朋友們提供一絲靈感,觀看新的辦公室設計方案,請持續(xù)關注嵐禾辦公空間設計。