
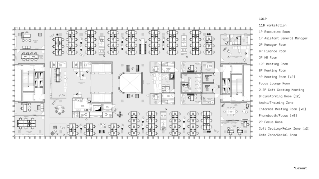
這次為大家帶來的是軟件技術辦公室裝修設計案例,空間面積為1500平方米,對于架構師總部辦公室來說,能夠反映架構的身份是我們的重要目標之一。由于它是一家技術和軟件公司,從入口區域開始,編碼語言在辦公室的每一個角落都是突出的設計元素。

歡迎區的“建筑咖啡廳”被設計成一個員工和游客都可以同時進行社交和非正式工作的區域。
在入口區域的右邊和左邊,有一個帶有非正式會議/工作區的開放辦公區的過渡。總部以人為中心的設計方法和以需求為導向的分區,提供了一個多樣化的工作環境.


該配色方案的靈感來源于建筑師的企業身份、藍色色調以及煙草、灰色等互補顏色,在整個空間中保持平衡。
自定義設計的聲學照明“菲爾特克聲學”是用來提供隔音在開放的辦公區域。在一些地區,天花板聲學擋板是首選。

工作站之間的分離器由自定義設計的充氣存儲單元組成.這些單位也被設計為快速電子郵件檢查點和休息區.
非正規工作單元是根據客戶的需要定制的。開放區可為4人舉行快速和非正式會議,而封閉部分可用作電話亭/焦點工作區。
在建筑公司身份的啟發下,3D三角圖案被用作封閉房間的墻壁覆蓋物。在非正式會議室,各種舒適的座位和工作風格的選擇為員工創造了許多選擇。
在新的工作世界中,所有協作領域都使用了技術支持的移動工具。

一般來說,“界面”地毯是作為地板覆蓋,提供隔音和阻擋回聲在開放式辦公空間。
在工作站下的蓖麻上的存儲單元是定制設計的。他們有單獨的部分個人物品和袋子,也是上層是一個郵袋的坐墊。


