
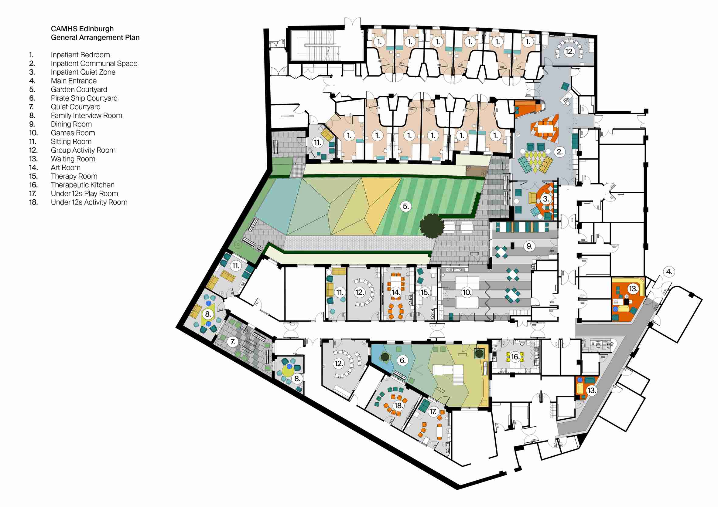
本次要給大家帶來的是精神康復治療室的裝修設計的案例,空間大小750平方米,主要面對兒童青少年,配色設計大膽跳脫,以使兒童或者青少年感到輕松。

在室內,把它想象成“第三個既不是醫院也不是家”的空間,而是有它自己的身份。
這些設計是在藝術家的幫助下進行的。幫助建筑師了解許多微妙的細節,這些細節對病人在一個空間中的感受有很大的影響。


色彩和圖案從海邊汲取靈感。
設計師們發現海邊經常被認為是一種有助于改善心理健康的環境,這也是這所空間將其作為設計起點的原因。顏色、圖案和圖案包含各種海濱參考資料。

設計師說:“我們對這些藝術品的設計采取了一種有趣的態度”
他解釋說:“每一次圖形干預都強化了整個沿海主題,但對于它們在不同的空間中的表現方式,已經采取了不同的方法。”
從簡單的海上旗,上面寫著電視房間里的單位名稱,一直到一幅有目標和目標的大型燈塔壁畫,在中央花園里玩球。

臥室包括一個靠窗的座位和一個可移動的腳凳。
人們利用一系列的隱私和團結度來創建區域,從社區活動和愉快的對話到提供私人交談機會的角落和角落,并在不感到與他人隔絕的情況下撤退。
所有這些都是在預算緊張的情況下實現的,這要歸功于標準和現成元素的使用。這些家具被簡單地定制,而定制的家具元素是由簡單的膠合板建造的。



