
本次要給大家帶來的是一家建筑師辦公室在戶外的裝飾設計的實拍圖,建造者稱之為,建筑師的“人洞”,體現了他的生命,他內心的喜好,并放大了他作為一個人的光環。
建筑面積:1200平方米
▼辦公室外立面


設計師為他的團隊,他的家人和朋友,以及那些想要利用他的專業知識的人提供一個空間。促進思想交流、學習、聚會、休閑、工作和生活的平臺。作為一個人和建筑師完全適合他的建筑/建筑的地方。團隊的一種隨意的設置意味著有一個樸素但沉思的空間來保持創造性的情緒,意識形態和哲學-建筑師辦公室。
▼工作區域


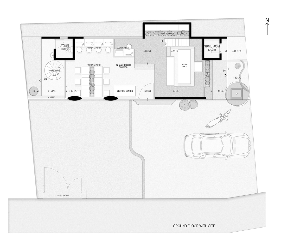
▼辦公室平面圖

該計劃是有最低限度的外部墻壁和沒有內部分區。這是一間5米高的單層客房,東端和西端有2層夾層。雖然地面一級的灌輸12個工作站,它有一個南入口的門廳,就在正門旁邊,構想一個候機室和行政辦公室。西邊的閣樓有一間迷你儲藏室,可以通過螺旋樓梯進入,而東方的閣樓則有建筑師的空間。東側更隨意,更多的是一個互動空間,而西方則被指定為一個正式的工作空間。
▼旋轉樓梯

▼經理辦公室
單人房開放式辦公理念促進了互動、透明、團隊合作、公開討論和充滿活力的學習氛圍,有助于創建一個崇高的項目。大廳內空間體積/高度的變化表明了各種空間體驗。在大門廳的雙高度和最低高度閣樓在2端暗示了一系列的視覺連接內和外的建筑物。
▼辦公室外立面
